Array ( [0] => [1] => 5 [2] => 7 [3] => ) SELECT * FROM shop_catalogs WHERE (`id`=5 or `id`=7) AND `delhide`<2 ORDER BY ID

Дачный дом «Лесной Приют»

Woods
Дачный дом «Лесной Приют»
Дачный дом «Лесной Приют»
Дачный дом «Лесной Приют»
Дачный дом «Лесной Приют»
Дачный дом «Лесной Приют»

Характеристики дома

# Параметр Значение
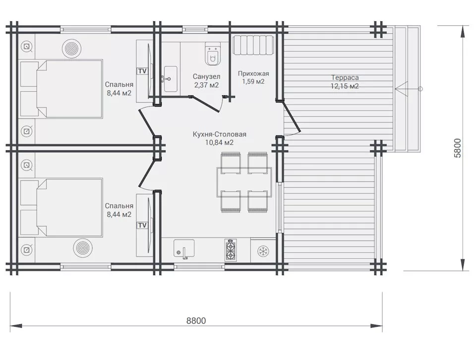
Площадь 51.1 м.кв.
Площадь застройки 8.80х5.80 м.кв.
Наличие террасы Да
Площадь террасы 12.20 м.кв.
Сборка 2320 р.

Стоимость дома в стандартной комплектации:
11580 р.

Есть вопросы?
Позвоните нам по телефону:
Позвонить и задать вопрос +7 916 888 70 48 Андрей Позвонить и задать вопрос +7 963 923 92 25 Виктория
Отправить сообщение

Каталоги проекта:

Дачный дом «Лесной Приют»

Вот необычный проект в линейке дачных домов - «Лесной Приют», необычный как внешне, так и наполнением. Ступенчатая, ломанная линии кровли выделяет новинку среди однообразных построек и визуально разделяет жилую зону дома и место отдыха – открытую веранду (12,5 м²).

Первый этаж дома вполне стандартен и унитарен. На входе есть небольшой тамбур-раздевалка, далее – кухня-столовая (12,2 м²), из которой отдельным помещением выделен санузел (2,6 м²). Из гостиной можно попасть в две номинальные спальни практически одинакового размера (около 9 м²). Что же в этом доме необычного?

На самом деле этот одноэтажный дом не ограничивается первым этажом. Над спальнями расположена изюминка проекта – открытая антресоль, куда можно попасть, поднявшись по лесенке из столовой. Такое решение в планировке дома окажется интересно всем членам семьи, от мала до велика, и каждый найдет верхнему ярусу свое применение.

Можно просто постелить наверху коврик, сесть в позу лотоса перед уходящим солнцем и помолиться, чтобы все кельи на жизненном пути были столь же приятными.

Параметры дома:

  • S застройки: 51.10 м.кв.
  • S дома всего: 44.00 м.кв.
  • S помещений: 31.80 м.кв.
  • S террас, крылец, балконов, навесов: 12.20 м.кв.

Цены приведены в долларах справочно и не являются публичной офертой.

Подвенечный оклад (обвязка)

Брус из древесины хвойных пород дерева естественной сушки сечением 100х150 мм

Наружные стены (17 венцов - высота стены 2,295 м), фронтоны и перегородки

Профилированный строганный мини-брус камерной сушки сечением 44х135 мм, влажность 12-14%, монтируется по технологии четырехстороннего замкового паза с ветровым замком (теплый не продуваемый угол).

Балки перекрытия (лаги)

Доска из древесины хвойных пород дерева естественной сушки сечением 50х150 мм, (шаг 600 мм), крепятся при помощи металлических опор бруса.

Полы

Доска пола 27х135, влажность 12-14%.

Стропильная система/прогоны

Строганный мини-брус камерной сушки сечением 45х140 мм, влажность 12-14%

Кровельный настил

Имитация бруса камерной сушки толщиной 20 мм, влажность 12-14%

Кровля

Гибкая черепица SHINGLAS, серия Оптима (цвет красный, серый или коричневый), монтируется на кровельный настил

Ветровая и торцевая планки

Строганная доска камерной сушки из хвойных пород дерева мм, влажность 12-14%

Входная дверь

Деревянный филенчатый дверной блок из массива сосны 2080х880 мм со всей необходимой фурнитурой, петли, врезной замок

Межкомнатные двери (если предусмотрены проектом)

Деревянный филенчатый дверной блок из массива сосны 2080х880 мм со всей необходимой фурнитурой; петли, ручка, фиксатор

Окна

Деревянный оконный блок из массива сосны с одинарным остеклением h - 1000 мм (укомплектован ручками и запором).

Наличники

Строганная доска камерной сушки из хвойных пород дерева мм, влажность 12-14%
Расскажите друзьям:

Другие варианты

Дачный дом «Артель»

Дачный дом «Артель»

4500 руб.
Дачный дом «Лабрадор»

Дачный дом «Лабрадор»

8600 руб.
Дом из бруса «Хозяйский»

Дом из бруса «Хозяйский»

12700 руб.
Садовый дом «Василек»

Садовый дом «Василек»

7720 руб.