Array ( [0] => [1] => 21 [2] => 1 [3] => 23 [4] => 24 [5] => 5 [6] => ) SELECT * FROM shop_catalogs WHERE (`id`=21 or `id`=1 or `id`=23 or `id`=24 or `id`=5) AND `delhide`<2 ORDER BY ID

Дом из бруса «Хозяйский»

Woods
Дом из бруса «Хозяйский»
Дом из бруса «Хозяйский»
Дом из бруса «Хозяйский»
Дом из бруса «Хозяйский»
Дом из бруса «Хозяйский»
Дом из бруса «Хозяйский»

Характеристики дома

# Параметр Значение
Площадь 61.2 м.кв.
Площадь застройки м.кв.
Наличие террасы Да
Площадь террасы 29,05 м.кв.
Сборка 2540 р.

Стоимость дома в стандартной комплектации:
12700 р.

Есть вопросы?
Позвоните нам по телефону:
Позвонить и задать вопрос +7 916 888 70 48 Андрей Позвонить и задать вопрос +7 963 923 92 25 Виктория
Отправить сообщение

Каталоги проекта:

Дом из бруса «Хозяйский»

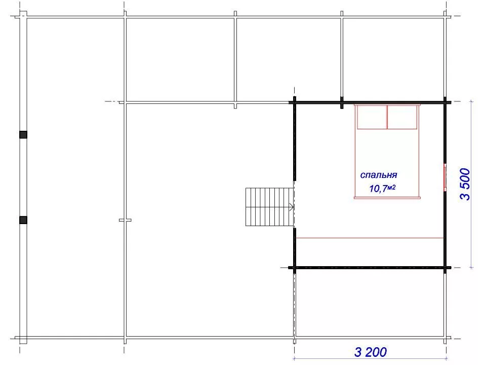
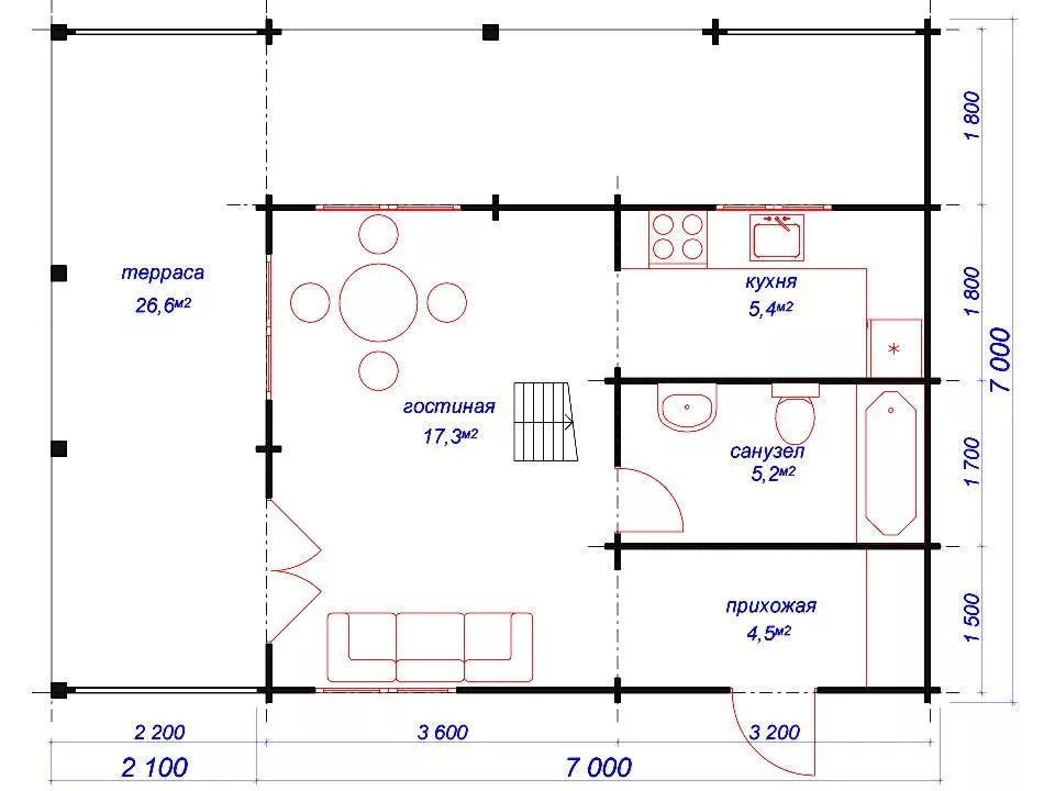
Дом «Хозяйский» — это современное решение для комфортной жизни за городом. Общая площадь строения составляет 61,27 м², из которых 29,05 м² занимает просторная терраса — идеальное место для семейных вечеров, отдыха с друзьями или утреннего кофе на свежем воздухе.

Функциональная планировка продумана до мелочей:

  • уютная гостиная с естественным освещением;

  • компактная и удобная кухня;

  • отдельный туалет для повседневного комфорта;

  • спальня на мансарде, создающая атмосферу уединения и уюта.

Стильный внешний вид дома в сочетании с эргономичным интерьером делает его отличным выбором как для сезонного проживания. Просторная терраса объединяет дом с природой, подчеркивая его современный характер.

Дом «Хозяйский» — практичный, красивый и удобный вариант для тех, кто ценит комфорт, функциональность и гармонию с окружающей средой.

Цены приведены в долларах справочно и не являются публичной офертой.

Подвенечный оклад (обвязка)

Брус из древесины хвойных пород дерева естественной сушки сечением 100х150 мм

Конструкция стен

Наружные и внутренние стены, перегородки - профилированный строганный мини-брус камерной сушки сечением 44х135 мм, влажность 12-14%, монтируется по технологии четырехстороннего замкового паза с ветровым замком (теплый не продуваемый угол). Без утепления
Высота стен не менее 18 венцов, ~ 2.43, высота фронтонов ~ 2,43 м
Стойки опорные 150х150 из древесины хвойных пород, влажность 12-14%

Конструкция пола

Лаги пола - доска из древесины хвойных пород дерева естественной сушки сечением 50х150 мм, (шаг ~600 мм), крепятся при помощи металлических опор бруса
Доска пола из хвойных пород древесины 27х135, влажность 12-14%.
Внутренние помещения - шпунтованная доска, на террасах (крыльцах) - палубная доска"
Плинтус деревянный напольный и потолочный
Техническая лесенка (ступени) около входа, из древесины, на 2 проступи, шириной 1,2 м

Конструкция перекрытия

Балки перекрытия - брус 50х150. Зашивка потолка имитацией бруса т.20 мм
Пол мансарды - доска шпунтованная из хвойных пород древесины. Плинтус

Конструкция крыши

Опорные прогоны - строганный мини-брус камерной сушки 45х140 мм, влажность 12-14%
Стропильная ферма из клееного бруса сечением 150х150, 150х200 мм
Кровельный настил - имитация бруса камерной сушки толщиной 20 мм, влажность 12-14%
Кровельное покрытие - гибкая черепица SHINGLAS, серия Оптима
(цвет серый, красный, коричневый или зеленый)"
Ветровая и торцевая планки - строганная доска камерной сушки из хвойных пород дерева

Двери

Входная дверь - деревянная филенчатая из массива сосны с фурнитурой и замком, остекленная
Межкомнатная дверь - деревянная филенчатая из массива сосны с фурнитурой и ручкой, глухая

Окна

Деревянные из массива сосны с одинарным остеклением, с ручками и запором, размеры по проекту
Наличники оконные и дверные - строганная доска камерной сушки из хвойных пород дерева

Окраска деревянных поверхностей

Не производится

Фундамент

В стоимость материала не входит

Сборка и доставка

Силами и средствами Продавца (в стоимость материала не входит)
Расскажите друзьям:

Другие варианты

Ревьера

Ревьера

51320 руб.
Дачный дом «Шелковый путь»

Дачный дом «Шелковый путь»

5410 руб.
Садовый дом «Ласточка»

Садовый дом «Ласточка»

9600 руб.
Садовый домик из бруса «Журавлик»

Садовый домик из бруса «Журавлик»

4190 руб.