Array ( [0] => [1] => 12 [2] => ) SELECT * FROM shop_catalogs WHERE (`id`=12) AND `delhide`<2 ORDER BY ID

Беседка 5 х 3 «Виноградная»

Woods
Беседка 5 х 3 «Виноградная»
Беседка 5 х 3 «Виноградная»
Беседка 5 х 3 «Виноградная»

Характеристики дома

# Параметр Значение
Площадь 13.44 м.кв.
Площадь застройки м.кв.
Наличие террасы
Площадь террасы м.кв.
Сборка 780 р.

Стоимость дома в стандартной комплектации:
2620 р.

Есть вопросы?
Позвоните нам по телефону:
Позвонить и задать вопрос +7 916 888 70 48 Андрей Позвонить и задать вопрос +7 963 923 92 25 Виктория
Отправить сообщение

Каталоги проекта:

Беседка 5 х 3 «Виноградная»

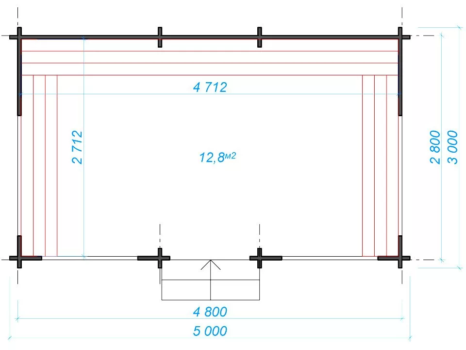
  • Габаритный размер: 3 х 5 м
  • Размер по основанию стен: 2,8 х 4.8 м
  • Площадь застройки: 13.44 м2

Шаганэ, ты моя Шаганэ!  
Я готов рассказать тебе, поле…

Не зря вспомнились слова великого классика, поскольку мы уверены, что такое вдохновение он мог испытать только в беседке, подобной представленным в нашем каталоге, с мангалом где-нибудь в виноградных предгорьях Кавказа, вдохновленный чистым воздухом и вкусными яствами.

Мы не позволим вам остаться в стороне от вдохновений и предлагаем интересную дачную постройку – беседка «Виноградная», хит минувшего сезона. Обладая увеличенными размерами (5,0 х 3,0 м) и площадью целых 15 м², она представляет собой неограниченный плацдарм для творчества, если не стихотворного, то, как минимум, дизайнерского. Здесь действительно есть, где развернуться: и в оборудовании, и в экстерьере, и в освещении.

Полностью закрытое с одной стороны и частично закрытое (в нижних ярусах) в остальных трех, сооружение позволяет разместить низкие предметы интерьера без опасений повреждения их осадками. При этом открытых проемов достаточно, чтобы внутри полноценно ощущать себя на свежем воздухе.

И пусть виноградная лоза, обвивающая ваше новое приобретение, позволяет лакомиться ягодами, не вставая с низких диванных подушек.

Цены приведены в долларах справочно и не являются публичной офертой.

Подвенечный оклад (обвязка)

Брус из древесины хвойных пород дерева естественной сушки сечением 100х150 мм.

Стены

Профилированный строганный мини-брус камерной сушки сечением 44х135 мм, влажность 12-14%, монтируется по технологии четырехстороннего замкового паза с ветровым замком. Высота стен не менее 17 венцов (~2.3 м).

Полы

Лаги– доска из древесины хвойных пород дерева естественной сушки сечением 50х150 мм, (шаг 600 мм), крепятся при помощи металлических опор бруса. Настил - палубная доска, влажность 12-14%.
Входная группа – техническая лесенка на 2 ступеньки шириной 1.2 м.

Крыша

Стропильная система из доски 50х150 мм. Кровельный настил (потолок) - имитация бруса камерной сушки толщиной 20 мм, влажность 12-14%.
Кровельное покрытие - гибкая черепица SHINGLAS, серия Оптима (цвет красный, серый или коричневый), монтируется на кровельный настил. Торцевая планка - строганная доска камерной сушки из хвойных пород дерева мм, влажность 12-14%.

Элементы мебели

Деревянные скамейки по периметру беседки.

Фундамент

Винтовые сваи (8 шт.) устанавливаются за дополнительную оплату.

Окрашивание

Декоративно-защитное покрытие деревянных изделий не производится.

Доставка и монтаж

Доставка и монтаж на участке Покупателя производятся за дополнительную оплату.

Изменение размеров

Возможно по согласованию. По желанию Покупателя возможна установка двери и окон, стоимость рассчитывается дополнительно.

Возможно по согласованию

По желанию покупателя возможна установка двери и окон, стоимость рассчитывается дополнительно.
Расскажите друзьям:

Другие варианты

Пергола из бруса «Ром-Антик»

Пергола из бруса «Ром-Антик»

890 руб.
Беседка «Сергей Есенин»

Беседка «Сергей Есенин»

1940 руб.
Беседка «Александр Блок»

Беседка «Александр Блок»

1460 руб.
Беседка Турист-3

Беседка Турист-3

11650 руб.