Array ( [0] => [1] => 12 [2] => ) SELECT * FROM shop_catalogs WHERE (`id`=12) AND `delhide`<2 ORDER BY ID

Беседка «Александр Блок»

Woods
Беседка «Александр Блок»
Беседка «Александр Блок»
Беседка «Александр Блок»

Характеристики дома

# Параметр Значение
Площадь 7.84 м.кв.
Площадь застройки м.кв.
Наличие террасы
Площадь террасы м.кв.
Сборка 450 р.

Стоимость дома в стандартной комплектации:
1460 р.

Есть вопросы?
Позвоните нам по телефону:
Позвонить и задать вопрос +7 916 888 70 48 Андрей Позвонить и задать вопрос +7 963 923 92 25 Виктория
Отправить сообщение

Каталоги проекта:

Беседка «Александр Блок»

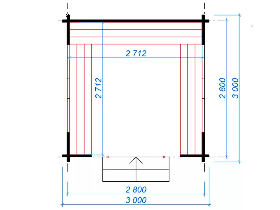
  • Габаритный размер: 3х м
  • Размер по основанию стен: 2.8х2.8 м
  • Площадь застройки: 7.84 м2

Как упоительны в России вечера…

Именно из дачной беседки пошло это утверждение, из семейных традиций провожать день, собираясь всем вместе на открытом воздухе. Чайные посиделки рождали специфичную трогательную атмосферу, беседуя, самые крепкие засиживались за полночь, находя то самое упоение жизнью…

Прелесть старинных времен сейчас возвращается стараниями мастеров ВираБуд, представляющих серию беседок из дерева, где в авангарде разместилась беседка для дачи «Александр Блок». Классическая в своем проявлении, размерами 3х3 метра, она уникальна в своем исполнении, материалами копируя богатое брусовое происхождение, но ценой проявляя доступность каждому.

Беседка уникальна и природным духом, будто напоминая слова великого творца позапрошлого века:

«Мы были вместе, помню я... 
          Ночь волновалась, скрипка пела... 
          Ты в эти дни была – моя.»

Мы уверены, что новая беседка вызовет у вас чувства, подобные рожденным Александром Блоком.

Цены приведены в долларах справочно и не являются публичной офертой.

Подвенечный оклад (обвязка)

Брус из древесины хвойных пород дерева естественной сушки сечением 100х150 мм.

Стены

Профилированный строганный мини-брус камерной сушки сечением 44х135 мм, влажность 12-14%, монтируется по технологии четырехстороннего замкового паза с ветровым замком. Высота стен не менее 17 венцов (~2.3 м), высота фронтонов ~0.5 м.

Полы

Лаги– доска из древесины хвойных пород дерева естественной сушки сечением 50х150 мм, (шаг 600 мм), крепятся при помощи металлических опор бруса. Настил - палубная доска, влажность 12-14%.

Крыша

Прогоны - строганный мини-брус камерной сушки сечением 45х140 мм, влажность 12-14%. Кровельный настил (потолок) - имитация бруса камерной сушки толщиной 20 мм, влажность 12-14%. Кровельное покрытие - гибкая черепица SHINGLAS, серия Оптима (цвет красный, серый или коричневый), монтируется на кровельный настил. Ветровая и торцевая планки - строганная доска камерной сушки из хвойных пород дерева мм, влажность 12-14%.

Элементы мебели

Деревянные скамейки по периметру беседки.

Фундамент

Винтовые сваи (4 шт.) монтируются за дополнительную оплату.

Окрашивание

Декоративно-защитное покрытие деревянных изделий не производится.

Доставка и монтаж

Доставка и монтаж на участке Покупателя производятся за дополнительную оплату.

Изменение размеров

Возможно по согласованию.
Расскажите друзьям:

Другие варианты

Беседка 5 х 3 «Виноградная»

Беседка 5 х 3 «Виноградная»

2620 руб.
Беседка «Сергей Есенин»

Беседка «Сергей Есенин»

1940 руб.
Беседка 3x3 «Тет-а-тет»

Беседка 3x3 «Тет-а-тет»

2060 руб.
Беседка Турист-1

Беседка Турист-1

4330 руб.