Array ( [0] => [1] => 29 [2] => ) SELECT * FROM shop_catalogs WHERE (`id`=29) AND `delhide`<2 ORDER BY ID

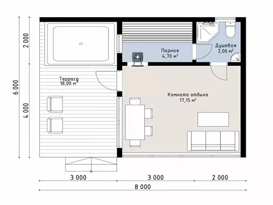
Каркасная баня с террасой «Панорама»

Woods
Каркасная баня с террасой «Панорама»
Каркасная баня с террасой «Панорама»
Каркасная баня с террасой «Панорама»
Каркасная баня с террасой «Панорама»

Характеристики дома

# Параметр Значение
Площадь 25 м.кв.
Площадь застройки 48 м.кв.
Наличие террасы Да
Площадь террасы 18 м.кв.
Сборка Включена в стоимость

Стоимость дома в стандартной комплектации:
19680 р.

Есть вопросы?
Позвоните нам по телефону:
Позвонить и задать вопрос +7 916 888 70 48 Андрей Позвонить и задать вопрос +7 963 923 92 25 Виктория
Отправить сообщение

Каталоги проекта:

Каркасная баня с террасой «Панорама»

«Панорама» — это стильная и современная баня, сочетающая традиции отдыха с актуальным архитектурным дизайном. Главная особенность проекта — просторная терраса площадью 18 м², на которой удобно разместить зону отдыха с мебелью, мангалом или даже джакузи. Терраса становится естественным продолжением интерьера и позволяет наслаждаться свежим воздухом в любое время года.

Большие панорамные окна придают бане особый шарм. Они наполняют помещения дневным светом и создают ощущение открытости, визуально расширяя пространство и соединяя интерьер с окружающей природой. Светлая отделка делает интерьер уютным и лёгким, а продуманная планировка обеспечивает максимальный комфорт использования.

Внутри расположены все необходимые зоны:

  • просторная парная с деревянной отделкой и удобными полками;

  • душевая с плиткой и гидроизоляцией;

  • комната отдыха для общения и расслабления;

  • а также полноценный санузел, что делает баню ещё более практичной и удобной для регулярного использования.

Используются только качественные материалы, устойчивые к влаге и температурным перепадам. Современный дизайн подчеркивает эстетику минимализма и функциональности.

 

Цены приведены в долларах справочно и не являются публичной офертой.

Основание

Свайно-винтовой фундамент (забивные ж/б сваи)

Стены

Подкладочная доска из лиственницы
Брус клееный стеновой производства, сечение 175х185(h)
Балки и столбы сухие, клееные, строганные
Лестница межэтажная черновая однопролетная

Силовой каркас внутренних перегородок

Вертикальные стойки – сухая строганная доска 45x45/95 мм, шаг 590 мм
Ригель над окнами и дверьми – сухая строганная доска 45x45/95 мм
Укосины – сухая строганная доска 45x45/95 мм
Высота потолков – 1,9 м в нижней точке, зашивка по стропилам.

Пол

Лаги - сухая строганная доска 45х95 мм, шаг 590 мм

Стропильная система

Стропильные ноги – сухая строганная доска 45x95 мм, шаг 590 мм
Коньковая балка – пакет из строганных досок общим сечением 95х145 мм
Свесы 50 мм - сухая строганная крашенная доска 20х45 мм

Наружная отделка

Крашенная имитация бруса, карельский профиль 20х147 мм
Cупердиффузионная мембрана Ондутис Smart AM
Контробрешетка – вентиляционный зазор – строганная рейка 20х45 мм
Наличники, углы – сухая строганная крашенная доска 20х96 мм
Настил террас - палубная доска 27х120 мм, лиственница

Кровля

Покрытие – Мягкая черепица Технониколь Финская соната, подкладочный ковер Anderep, ОСБ плита толщиной 12 мм
Обрешетка – сухая строганная крашенная доска 20x96 мм
Контробрешетка – вентиляционный зазор – сухой строганный брусок 45x45 мм
Cупердиффузионная мембрана Ондутис Smart AM

Утепление

Внешние стены – 100 мм плитный базальтовый утеплитель Rockwool Лайт Баттс Скандик
Пол 1-ого этажа – 100 мм плитный базальтовый утеплитель Rockwool Лайт Баттс Скандик
Перегородки – 50/100 мм плитный базальтовый утеплитель Rockwool Лайт Баттс Скандик
Кровля – 100 мм плитный базальтовый утеплитель Rockwool Лайт Баттс Скандик

Внутренняя отделка

Имитация бруса, карельский профиль 20х147 мм в сухих помещениях
Вагонка из ольхи в парной и моечном отделении
Г-образные полки шириной 600 мм, из ольхи
Обрешетка – сухая строганная рейка, сечением 20x40 мм – технологический зазор
Пароизоляция – фольматкань с проклейкой швов фольгированным скотчем

Настил полов

Настил пола – шпунтованная доска 36х147 мм в сухих помещениях, в парной и моечном отделении подъемные трапики из сибирской лиственницы
Обрешетка – сухая строганная рейка, сечением 20x40 мм – технологический зазор
Пароизоляция – фольматкань с проклейкой швов фольгированным скотчем

Черновой пол

ОСБ плита толщиной 9 мм

Окна

ПВХ 60 мм, белые (серые) - двухкамерный профиль, однокамерный стеклопакет, поворотные с фурнитурой
В парной форточка 400х400 мм
Наличники, откосы - строганная доска 12х70 мм

Двери

Входная – ПВХ 60мм, двухкамерный профиль, однокамерный стеклопакет, поворотные с фурнитурой. Размер 700х1900 мм
Межкомнатные – стеклянные двери толщиной 8мм с тремя петлями, с магнитным замком. Цвет сатин. Размер 700х1900 мм
Расскажите друзьям:

Другие варианты

Каркасная баня «Нордика»

Каркасная баня «Нордика»

14980 руб.
Каркасная баня «Скавия»

Каркасная баня «Скавия»

10570 руб.
Каркасная баня «Сольмера»

Каркасная баня «Сольмера»

16670 руб.