Array ( [0] => [1] => 2 [2] => 21 [3] => 23 [4] => ) SELECT * FROM shop_catalogs WHERE (`id`=2 or `id`=21 or `id`=23) AND `delhide`<2 ORDER BY ID

Богдан

Woods
Богдан
Богдан
Богдан
Богдан
Богдан
Богдан
Богдан

Характеристики дома

# Параметр Значение
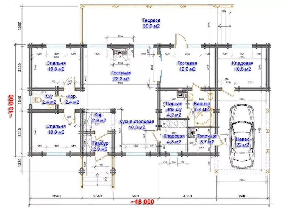
Площадь 161.6 м.кв.
Площадь застройки м.кв.
Наличие террасы Да
Площадь террасы 55.7 м.кв.
Сборка Включена в стоимость

Стоимость дома в стандартной комплектации:
57250 р.

Есть вопросы?
Позвоните нам по телефону:
Позвонить и задать вопрос +7 916 888 70 48 Андрей Позвонить и задать вопрос +7 963 923 92 25 Виктория
Отправить сообщение

Каталоги проекта:

Богдан

Параметры дома:

  • S застройки: 189.8 м.кв.
  • S дома всего: 161.6 м.кв.
  • S помещений: 105.9 м.кв.
  • S террас, крылец, балконов, навесов: 55.7 м.кв.

Цены приведены в долларах справочно и не являются публичной офертой.

Высота 1 этажа от чистого пола

Не менее 2500 мм

Лестница

Техническая (один марш) из доски естественной сушки сечением 50х150 мм, шириной 800 мм

Санузел

Без дополнительной отделки и гидроизоляции

Крыльцо

Если предусмотрено проектом

Терраса

Если предусмотрено проектом

Веранда

Если предусмотрено проектом

Балкон

Если предусмотрено проектом

Чердак

Если предусмотрено проектом

Внутренняя отделка стен

Не требуется. Поверхность подготовлена для нанесения защитных средств

Наружная отделка стен

Не требуется. Поверхность подготовлена для нанесения защитных средств

Наружные стены

Конструкция стены по технологии "двойной" брус с заполнением пространства высокоэффективным теплоизоляционным материалом "Эковата" толщиной 150 мм. Брус камерной сушки из хвойных пород дерева влажностью 10-12% монтируется по технологии четырехстороннего замкового паза с ветровым замком (теплый не продуваемый угол)

Перегородки

Конструкция стены по технологии "двойной" брус с заполнением пространства высокоэффективным теплоизоляционным материалом "Эковата" толщиной 150 мм. Брус камерной сушки из хвойных пород дерева влажностью 10-12% монтируется по технологии четырехстороннего замкового паза с ветровым замком (теплый не продуваемый угол)

Балки перекрытия 1-го этажа

Брус из древесины хвойных пород естественной сушки сечение 50х200 мм. Сечение определяется проектом

Стропильные ноги

Брус из древесины хвойных пород естественной сушки сечение 50х200 мм. Сечение определяется проектом

Конструкция кровли

Утепленная кровля с вентиляционным зазором, капельником конденсата и москитной сеткой. Контробрешетка из бруска 44 мм, шаговая обрешетка.

Кровельное покрытие

Металлочерепица Грандлайн классик 0,45 PE, планки коньковые, карнизные/капельник, торцевые, примыкания, ендовы.

Подшивка карнизов/софиты

Вагонка 16 мм камерной сушки из хвойных пород дерева.

Утепление пола 1-го этажа

Утепление пола 150 мм; доска пола, пароизоляционная мембрана Изоспан С; минвата ROCKWOOL Лайт Баттс 1000х600х50 мм в плитах, плотность 37 кг/м3; мембрана супердиффузионная гидро-ветрозащитная Изоспан А, основание под теплоизоляцию из доски 20х90 мм. Возможна замена утеплителя на «Эковату экстра» и основания на ОСП-3 9 мм

Утепление крыши

Утепление 200 мм; кровля; шаговая обрешетка; контробрешетка; гидро-ветрозащитная мембрана Изоспан АМ; минвата ROCKWOOL Лайт Баттс Скандик1000х600х50 мм в плитах, плотность 37 кг/м3, пароизоляционная мембрана Изоспан С; вагонка.

Покрытие полов 1-го этажа

Палубная доска 32 х 140, влажность 12-14%.

Полы балкона/крыльца/террасы/веранды (если предусмотрено проектом)

Террасная доска камерной сушки из хвойных пород дерева толщиной 27 мм по лагам, монтаж открытым способом

Полы санузла/котельной (если предусмотрено проектом)

Шпунтованная доска камерной сушки из хвойных пород дерева толщиной 35 мм или ОСП-3 толщиной 22 мм по лагам, монтаж открытым способом. Возможна замена доски пола на лист ЦСП толщиной 20 мм.

Отделка потолка 1-го этажа во всех помещениях

По межэтажным перекрытиям вагонкой камерной сушки из хвойных пород дерева, толщиной 16 мм, монтаж финишными гвоздями открытым способом

Потолок санузла/ котельной (если предусмотрен проектом)

По межэтажным перекрытиям или стропильным ногам вагонкой камерной сушки из хвойных пород дерева, толщиной 16 мм, монтаж финишными гвоздями открытым способом.

Потолок крыльца/ террасы/ веранды/ балкона (если предусмотрен проектом)

По межэтажным перекрытиям или стропильным ногам вагонкой камерной сушки из хвойных пород дерева, толщиной 16 мм, монтаж финишными гвоздями открытым способом.

Межкомнатные двери

Евродверь (h)2080х880 мм (филенчатая срощенная бессучковая) со всей необходимой фурнитурой: универсальные петли, фиксатор, ручка-кнопка.

Входная дверь

Дверь стальная "Йошкар" (h) 860х2050мм с утеплением минеральной ватой. Внешнее покрытие: порошково-полимерное. Внутреннее покрытие: МДФ панель 8 мм. Толщина дверного полотна: 65 мм. Замок основной: цилиндровый, дополнительный: сувальдный "ZirhKilit".

Окна

ПВХ-окна Rehau BLITZ NEW 60 цвет белый с двухкамерным стеклопакетом Life Glass, фурнитурой ROTO NT, глухой и поворотнооткидной створкой, отливом 70 мм цвет белый, высота изделия 1200 мм, ширина изделия определяется проектом.

Окосячка окон

Т-образный профиль из доски камерной сушки хвойных пород дерева

Наличники на окна

сечением 20х140 мм из доски камерной сушки хвойных пород дерева

Отделка откосов оконных проемов

Откосы оконных проемов с четырех сторон отделываются доской камерной сушки мм на всю ширину откоса. Торцы откосов отделываются по периметру с четырех сторон - наличником (R2- профиль сечением 20х140 мм из доски камерной сушки).
Расскажите друзьям:

Другие варианты

Дом из бруса «Уют»

Дом из бруса «Уют»

20880 руб.
Гаспадар

Гаспадар

50000 руб.
Ревьера

Ревьера

51320 руб.
Дом из бруса «Успех»

Дом из бруса «Успех»

45040 руб.