Array ( [0] => [1] => 12 [2] => ) SELECT * FROM shop_catalogs WHERE (`id`=12) AND `delhide`<2 ORDER BY ID

Беседка из бруса «БарбеХаус»

Woods
Беседка из бруса «БарбеХаус»
Беседка из бруса «БарбеХаус»
Беседка из бруса «БарбеХаус»

Характеристики дома

# Параметр Значение
Площадь 10.4 м.кв.
Площадь застройки м.кв.
Наличие террасы
Площадь террасы м.кв.
Сборка 570 р.

Стоимость дома в стандартной комплектации:
1900 р.

Есть вопросы?
Позвоните нам по телефону:
Позвонить и задать вопрос +7 916 888 70 48 Андрей Позвонить и задать вопрос +7 963 923 92 25 Виктория
Отправить сообщение

Каталоги проекта:

Беседка из бруса «БарбеХаус»

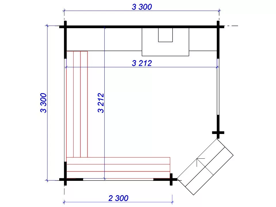
  • Габаритный размер: 3,5 х 3,5 м.
  • Размер по основанию стен: 3,3 х 3,3 м.
  • Площадь застройки: 10,4 м2.
  • Цена за комплект материала: 5.990 р.
  • Цена монтажа (30%): 1.800 р.

Необычной беседке нужно было дать необычное название. Так появился БарбеХаус. И речь здесь вовсе не о модных Барберах или кукольных Барби… Названием своим беседка четко отсылает к своему главному предназначению – Дома для Барбекю. Загляните, мы гарантируем вам изысканный вкус.

Хорошо известно, что четко поставленная задача – уже половина решения. И правильный эмоциональный настрой – отличное подспорье тому. Так мы и поступили, понимая, что качество барбекю зависит не только от уровня ингредиентов и оборудования, но и от комфортного состояния «повара».

Согласитесь, беседка «БарбеХаус» не оставляет равнодушных. Конструкторам удалось совместить простоту исполнения с элегантной подачей, соблюдая необходимые технические формальности.

Чтобы создать эксклюзивный угловой вход и сохранить достойную полезную внутреннюю площадь в 9м², мы увеличили габариты беседки на полметра от привычных – до 3,5х3,5м. Три стены конструкции – максимально открыты, что в купе со «срезанным» углом входа придает беседке наиболее воздушный вид, при этом имеет надежно защищенный периметр под четырехскатной кровлей. Одна из стен – сплошная, для установки печи.

Изюминка этого варианта – наличие компактного «дровника» за сплошной стеной, также изящно выполненного и добротно укрытого свесом кровли – уютно, чисто и все необходимое под рукой.

Знаете, видимо напрасно вначале мы вычеркнули Барберов из названия. Нашей компании вполне можно доверить модный образ своего загородного участка.

Да и Барби была бы довольна.

Цены приведены в долларах справочно и не являются публичной офертой.

Подвенечный оклад (обвязка)

Брус из древесины хвойных пород дерева естественной сушки сечением 100х150 мм.

Стены

Профилированный строганный мини-брус камерной сушки сечением 44х135 мм, влажность 12-14%, монтируется по технологии четырехстороннего замкового паза с ветровым замком.
Высота стен не менее 17 венцов (~2,3 м).

Полы

Лаги– доска из древесины хвойных пород дерева естественной сушки сечением 50х150 мм, (шаг 600 мм), крепятся при помощи металлических опор бруса.
Настил - палубная доска, влажность 12-14%.
Входная группа – техническая лесенка на 2 ступеньки шириной 1,2 м.

Крыша

Стропильная система из доски 50х150 мм.
Кровельный настил (потолок) - имитация бруса камерной сушки толщиной 20 мм, влажность 12-14%.
Кровельное покрытие - гибкая черепица SHINGLAS, серия Оптима (цвет красный, серый или коричневый), монтируется на кровельный настил.
Торцевая планка - строганная доска камерной сушки из хвойных пород дерева мм, влажность 12-14%.

Элементы мебели

Деревянные скамейки (2 шт.)

Фундамент

Винтовые сваи устанавливаются за дополнительную оплату.

Окрашивание

Декоративно-защитное покрытие деревянных изделий не производится.

Доставка и монтаж

Доставка и монтаж на участке Покупателя производятся за дополнительную оплату.

Изменение размеров

Возможно по согласованию.

Печь и дымоход

Не входит в стоимость.
Расскажите друзьям:

Другие варианты

Беседка «Подарок»

Беседка «Подарок»

770 руб.
Беседка Турист-1

Беседка Турист-1

4330 руб.
Беседка «Полянка» 2.0

Беседка «Полянка» 2.0

3800 руб.
Беседка Турист-3

Беседка Турист-3

11650 руб.