Array ( [0] => [1] => 7 [2] => 21 [3] => 23 [4] => 5 [5] => ) SELECT * FROM shop_catalogs WHERE (`id`=7 or `id`=21 or `id`=23 or `id`=5) AND `delhide`<2 ORDER BY ID

Садовый дом «Бальзамин»

Woods
Садовый дом «Бальзамин»
Садовый дом «Бальзамин»
Садовый дом «Бальзамин»
Садовый дом «Бальзамин»
Садовый дом «Бальзамин»
Садовый дом «Бальзамин»

Характеристики дома

# Параметр Значение
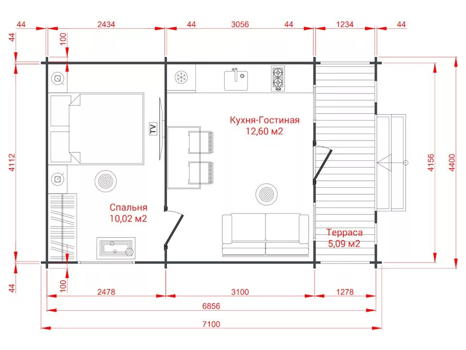
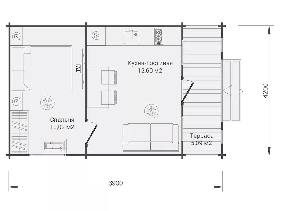
Площадь 27.7 м.кв.
Площадь застройки 7.1x4.4 м.кв.
Наличие террасы Да
Площадь террасы 5.1 м.кв.
Сборка 1060 р.

Стоимость дома в стандартной комплектации:
5290 р.

Есть вопросы?
Позвоните нам по телефону:
Позвонить и задать вопрос +7 916 888 70 48 Андрей Позвонить и задать вопрос +7 963 923 92 25 Виктория
Отправить сообщение

Каталоги проекта:

Садовый дом «Бальзамин»

Бальзамин в переводе с латинского означает «нетерпеливый». 

Так и этот небольшой садовый домик, подобно популярному цветку, мгновенно возникнет на вашем участке в случае, если терпеть имеющиеся неудобства уже невозможно.

Прелесть этого проекта дачного дома заключается в его универсальности. На первом этапе строительства он может стать полноценным жильем, а в последующем прекрасно трансформироваться в отличную баню или садовую постройку любого другого предназначения.

На фото садового дома можно увидеть небольшую веранду 5 кв.м. и две больших комнаты 13 и 10 м². Конструкторы ВираБуд предусмотрели вольное расположение окон данного дачного домика в зависимости от пожеланий заказчика.

В дальнейшем, окружив дом растениями семейства бальзаминовых, можно создать уникальный цветочный оазис в едином стиле.

Параметры дома:

  • S застройки: 29.0 м.кв.
  • S дома всего: 27.7 м.кв.
  • S помещений: 22.6 м.кв.
  • S террас, крылец, балконов, навесов: 5.1 м.кв.

Цены приведены в долларах справочно и не являются публичной офертой.

Подвенечный оклад (обвязка)

Брус из древесины хвойных пород дерева естественной сушки сечением 100х150 мм

Наружные стены (17 венцов - высота стены 2,295 м), фронтоны и перегородки

Профилированный строганный мини-брус камерной сушки сечением 44х135 мм, влажность 12-14%, монтируется по технологии четырехстороннего замкового паза с ветровым замком (теплый не продуваемый угол).

Балки перекрытия (лаги)

Доска из древесины хвойных пород дерева естественной сушки сечением 50х150 мм, (шаг 600 мм), крепятся при помощи металлических опор бруса.

Полы

Доска пола 27х135, влажность 12-14%.

Стропильная система/прогоны

Строганный мини-брус камерной сушки сечением 45х140 мм, влажность 12-14%

Кровельный настил

Имитация бруса камерной сушки толщиной 20 мм, влажность 12-14%

Кровля

Гибкая черепица SHINGLAS, серия Оптима (цвет красный, серый или коричневый), монтируется на кровельный настил

Ветровая и торцевая планки

Строганная доска камерной сушки из хвойных пород дерева мм, влажность 12-14%

Входная дверь

Деревянный филенчатый дверной блок из массива сосны 2080х880 мм со всей необходимой фурнитурой, петли, врезной замок

Межкомнатные двери (если предусмотрены проектом)

Деревянный филенчатый дверной блок из массива сосны 2080х880 мм со всей необходимой фурнитурой; петли, ручка, фиксатор

Окна

Деревянный оконный блок из массива сосны с одинарным остеклением h - 1000 мм (укомплектован ручками и запором).

Наличники

Строганная доска камерной сушки из хвойных пород дерева мм, влажность 12-14%
Расскажите друзьям:

Другие варианты

Садовый дом «Ласточка»

Садовый дом «Ласточка»

9600 руб.
Садовый дом «Ассоль»

Садовый дом «Ассоль»

4630 руб.
Садовый дом «Двойной удел»

Садовый дом «Двойной удел»

3980 руб.
Садовый домик «Эталонный»

Садовый домик «Эталонный»

3630 руб.