Array ( [0] => [1] => 5 [2] => 21 [3] => 23 [4] => ) SELECT * FROM shop_catalogs WHERE (`id`=5 or `id`=21 or `id`=23) AND `delhide`<2 ORDER BY ID

Дачный дом «Золотая середина»

Woods
Дачный дом «Золотая середина»
Дачный дом «Золотая середина»
Дачный дом «Золотая середина»
Дачный дом «Золотая середина»
Дачный дом «Золотая середина»
Дачный дом «Золотая середина»

Характеристики дома

# Параметр Значение
Площадь 33.6 м.кв.
Площадь застройки 6х6 м.кв.
Наличие террасы Да
Площадь террасы 6.2 м.кв.
Сборка 1340 р.

Стоимость дома в стандартной комплектации:
6730 р.

Есть вопросы?
Позвоните нам по телефону:
Позвонить и задать вопрос +7 916 888 70 48 Андрей Позвонить и задать вопрос +7 963 923 92 25 Виктория
Отправить сообщение

Каталоги проекта:

Дачный дом «Золотая середина»

Этот садовый домик с верандой стал поистине воплощением принципа, который мы называем «золотой серединой», когда в самый универсальный проект от ВираБуд вместилось все самое необходимое по самой демократичной цене. И, естественно, идеальное сочетание размеров дома и цены сразу сделало его настоящим Суперхитом. 

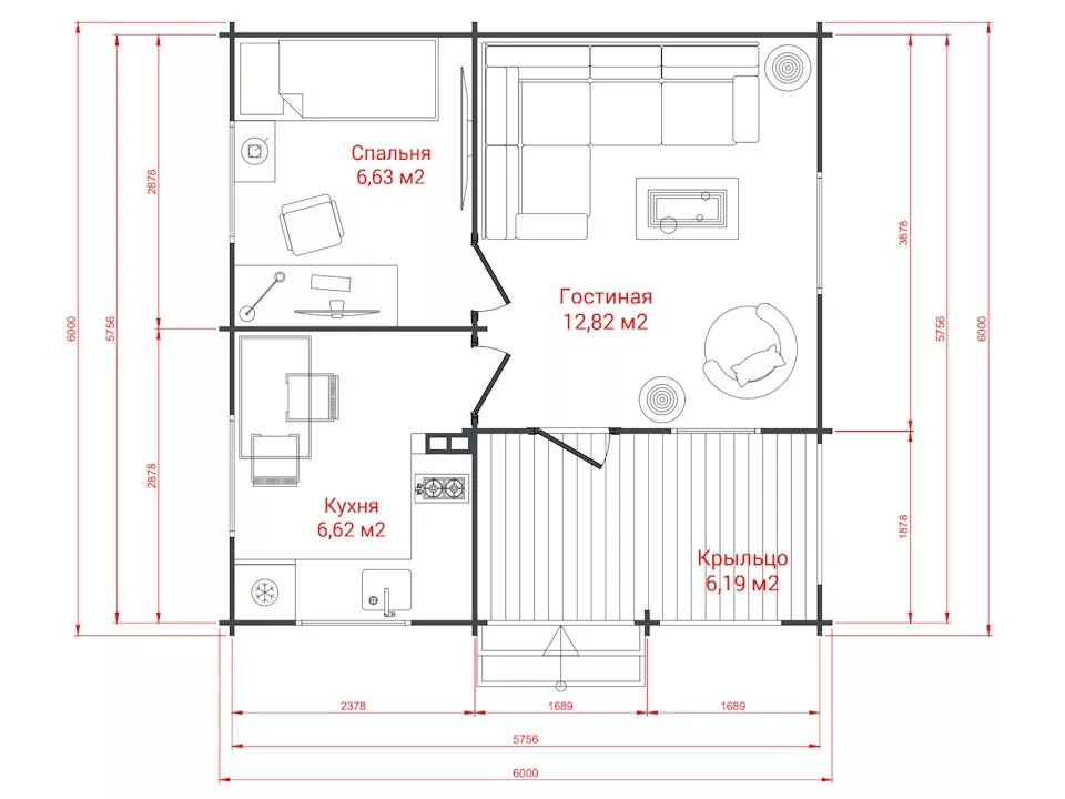
Состав дачного дома: две изолированные комнаты по 6,5 метров, холл в 13 кв.м и 6-ти метровая веранда.

Все 36 квадратных метров дачного комфорта и уюта позволят вместить и кухню, и спальню, и место для приема гостей.

Наконец, веранда – настоящее украшение дома из бруса. Ее планировка дает возможность организовать места для хранения, а также поставить большой стол и стулья и разместиться даже большой компанией. Все сидящие за столом будут надежно укрыты от ветра, осадков или палящего солнца. 

При необходимости этот проект садового домика трансформируется в постройку любого предназначения: для отдыха или хранения, работы или приготовления еды, или в идеальный гостевой дачный дом.

Правда, не исключена одна проблема… Гости не захотят от вас уезжать.

Параметры дома:

  • S застройки: 33.60 м.кв.
  • S дома всего: 32.30 м.кв.
  • S помещений: 26.10 м.кв.
  • S террас, крылец, балконов, навесов: 6.20 м.кв.

Цены приведены в долларах справочно и не являются публичной офертой.

Подвенечный оклад (обвязка)

Брус из древесины хвойных пород дерева естественной сушки сечением 100х150 мм

Наружные стены (17 венцов - высота стены 2,295 м), фронтоны и перегородки

Профилированный строганный мини-брус камерной сушки сечением 44х135 мм, влажность 12-14%, монтируется по технологии четырехстороннего замкового паза с ветровым замком (теплый не продуваемый угол).

Балки перекрытия (лаги)

Доска из древесины хвойных пород дерева естественной сушки сечением 50х150 мм, (шаг 600 мм), крепятся при помощи металлических опор бруса.

Полы

Доска пола 27х135, влажность 12-14%.

Стропильная система/прогоны

Строганный мини-брус камерной сушки сечением 45х140 мм, влажность 12-14%

Кровельный настил

Имитация бруса камерной сушки толщиной 20 мм, влажность 12-14%

Кровля

Гибкая черепица SHINGLAS, серия Оптима (цвет красный, серый или коричневый), монтируется на кровельный настил

Ветровая и торцевая планки

Строганная доска камерной сушки из хвойных пород дерева мм, влажность 12-14%

Входная дверь

Деревянный филенчатый дверной блок из массива сосны 2080х880 мм со всей необходимой фурнитурой, петли, врезной замок

Межкомнатные двери (если предусмотрены проектом)

Деревянный филенчатый дверной блок из массива сосны 2080х880 мм со всей необходимой фурнитурой; петли, ручка, фиксатор

Окна

Деревянный оконный блок из массива сосны с одинарным остеклением h - 1000 мм (укомплектован ручками и запором).

Наличники

Строганная доска камерной сушки из хвойных пород дерева мм, влажность 12-14%
Расскажите друзьям:

Другие варианты

Дачный дом «Рябина»

Дачный дом «Рябина»

7390 руб.
Дачный дом «Лабрадор»

Дачный дом «Лабрадор»

8600 руб.
Дачный дом «Гармоничный»

Дачный дом «Гармоничный»

7500 руб.
Садовый домик «Эталонный»

Садовый домик «Эталонный»

3630 руб.